Be immediately captured by this multi level large family home, 13 Kilander stands tall, proud and presents its new owner the opportunity to enjoy all the space and warmth this home delivers. With many modern elements including solar and NBN, it delivers, for a large or growing family, a fantastic opportunity.
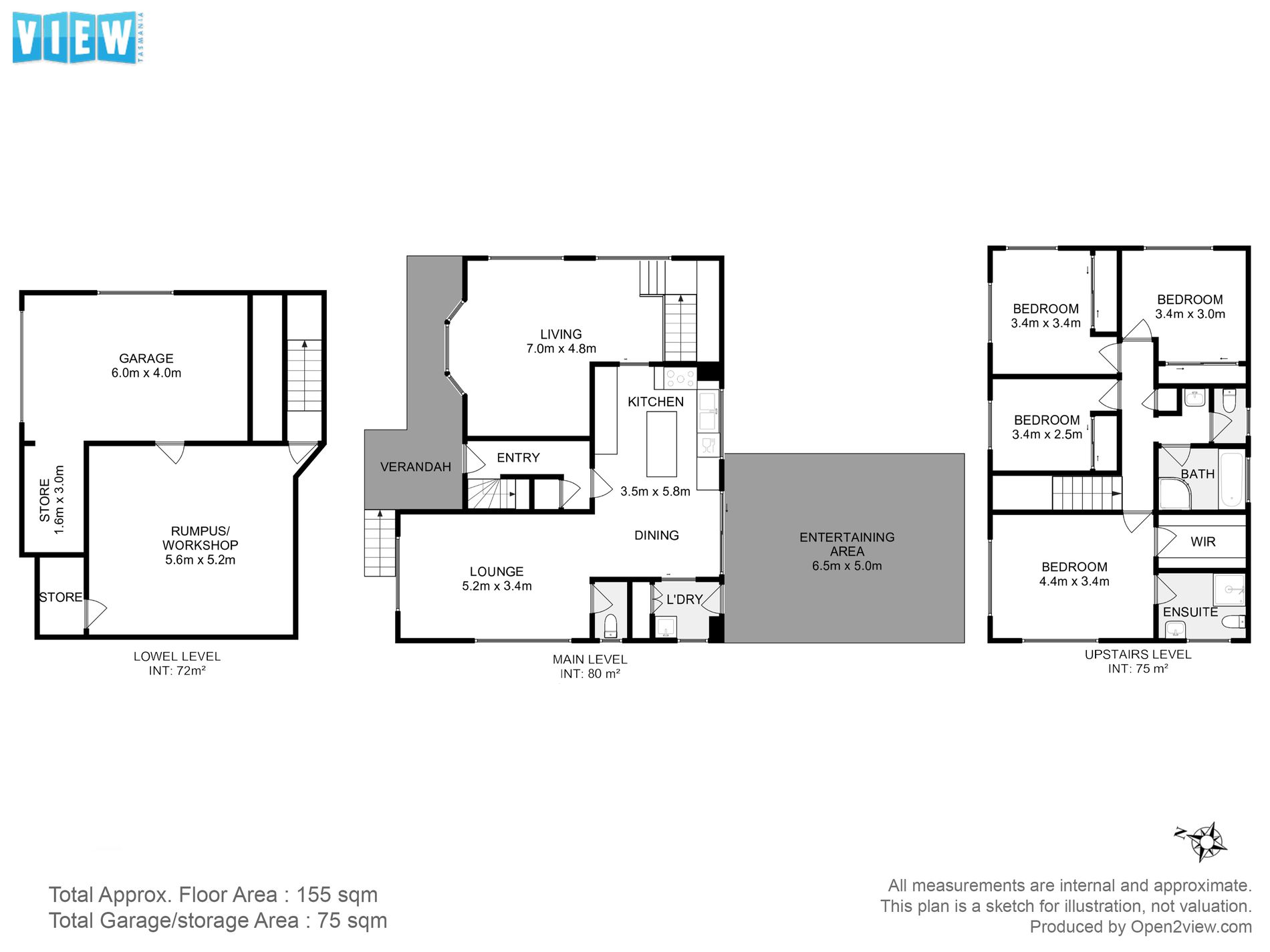
>> Middle Level
Upon entry, enjoy the light and warmth in the first living space, capturing water glimpses & neighbourhood trees from inside or choose to relax on the outside verandah. The kitchen wraps around providing a striking charcoal tone with island bench along with a 900mm oven and 2 drawer dishwasher for the most astute cook. The dining is directly connected and leads to the large covered entertaining area, where endless friend & family gatherings can be relished. A second living space flows from the dining also, where you can create another living space as you need. The middle level has warmth provided by two Panasonic reverse cycle heat pumps.
>> Top Level
Four great size bedrooms, all with built in robes with the family bathroom intelligently designed and you can sit back and relax in the single spa. The large master features an ensuite with a generous walk in robe. Each bedroom enjoys the benefits from the ducted heating & cooling system too.
>> Downstairs
A large rumpus room space is the third living space, perfect for a home gym, children’s play space or potentially a guest room when required. You could even turn the adjoining walk in storage room into a third bathroom if you wished (STCA). The single car garage with Steeline remote control is large, giving you internal access into the home. With many storage components and a workshop space, storage won’t be an issue.
>> Outside
The large front yard provides parking for a variety of vehicles plus a secured parking space behind a tall gate. The backyard is fully fenced and secured with your choice of deck or patio area to relax. The tiered lawn space and raised garden beds, allows your green thumb to be satisfied.
13 Kilander is a delightful, spacious and warm family home and presents the new owner with space and modern features to appreciate. Located in the heart of Berriedale, with public transport close by and within easy drive to Hobart, 13 Kilander is sure to make your next home a magic one.
Rates: $2000pa (approx)
Water: $800pa (approx)
Rental Appraisal: $650-$710 per week
We have obtained all information in this document from sources we believe to be reliable however we cannot guarantee its accuracy. Prospective purchasers are advised to carry out their own investigations.
>> Need to sell to buy this?
Make the move, contact the award winning Real Estate Agent, Russell Yaxley to find out the value of your home. Let's get you on the move.
Features
- Air Conditioning
- Ducted Cooling
- Ducted Heating
- Reverse Cycle Air Conditioning
- Balcony
- Deck
- Fully Fenced
- Outdoor Entertainment Area
- Remote Garage
- Secure Parking
- Alarm System
- Broadband Internet Available
- Built-in Wardrobes
- Dishwasher
- Inside Spa
- Rumpus Room
- Solar Panels























































