Beautifully renovated 6 roomed 1860's Georgian cottage has highly desirable level access and will appeal to singles, retirees, young professionals, couples downsizing or as Boutique Accommodation (STCA). Ideally located in an historic precinct of South Hobart.
The recent sympathetic renovation retains many of the original features and includes a new Jetmaster wood fireplace, electric heating, European appliances and hand crafted timber joinery through out the house, providing floor to ceiling discreet storage. Bose sound system is wired into the ceilings and is available by negotiation.
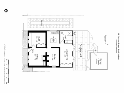
The cottage has a separate dining room and 2 living rooms, one of which would easily convert into a 2nd bedroom. The main bedroom has been skillfully updated with built in bed, storage and quality fittings and original character Baltic pine door.
A comfortable and stylish Sitting Room has an atmospheric wood fireplace, original fire surround, quality carpet, morning sunshine and Duette blinds for additional insulation, privacy and filtered light.
The informal Living Room has two sets of French doors opening onto a private stone flagged courtyard with clipped parterre box hedging and jasmine, ivy and camellia covered walls, all creating a verdant setting for alfresco dining.
The country style kitchen and dining rooms have sloping timber ceilings and are true to the style of architecture found in early colonial workman's cottages. An updated bathroom has a large walk-in shower, combined washing machine/dryer and restful views of the garden.
The sunny rambling garden will inspire you with its majestic willow tree, gentle sloping lawns, watering system, established plantings and even a rustic shed to store the firewood. There's also plenty of room to plant your herbs and vegetables!
An old stable, which is now covered in greenery and jasmine, provides a lovely backdrop to the courtyard and would make an inspiring artist's studio or additional storage space.
This property would also make ideal Boutique Accommodation (STCA) the owner will consider selling the property fully furnished.
* Comfortable inner city lifestyle with quality renovations
* Level access, 2 car spaces, automatic gate
* European appliances, alarm, roof insulation, watering system
* Walk to cafes, galleries, Salad Bowl Providore and city
* Beautiful historic cottage in immaculate condition!
Features
- Alarm System































